
Designer's Foreword...
本案业主是幸福的一家四口,
在上海佘山购入叠墅,外带一个阁楼。
装修前业主其实默默关注我们一年了,
因考虑到路程问题,找了松江区当地装修公司,
到设计效果图阶段觉得效果不是自己想要的,
最终还是选择了自己的第一感觉,兜兜转转还是找到我们。
遇到对的人就是这么一拍即合,
第一版平面图一稿而过,还没出效果图十万施工费就打过来。
叠墅施工相对复杂,
施工一年我们往返松江区至少70-80次,
所幸最后出品不负业主所托。
本案在设计规划上,
二层主要为玄关+客餐厨+客卫,
三层为主卧+客厅+2个多功能房+双卫,
毛坯的阁楼改为两个梦幻儿童房+三分离卫生间,
最抢眼的是好玩消防滑杆,
极大满足了童心。
项目信息 Project Info地点 | 上海松江区面积 | 212㎡屋况 | 二手房工期 | 1年改造预算 | 108万居住人口 | 一家四口

▲二楼Before的平面图

▲二楼After的平面图
设计改造后亮点:
①原有户型无玄关缓冲,改造完后增设了玄关休憩,到顶大鞋柜很好容纳全家鞋袜需求。
②厨房原本偏于一隅很狭隘,干脆与餐厅打通,形成超大餐厨一体空间。
③考虑到二层无卫生间不方便,调转楼梯方向,利用楼梯下方增设小卫生间。

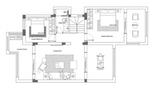
▲三楼Before的平面图

▲三楼After的平面图
设计改造后亮点:
原本两房一卫+客厅,
被改造成超大客厅+可开可合的多功能房间+主卧大套间+楼梯小休闲间,
储物扩大了两倍,而且两个阳台纳入室内得到充分利用。

▲阁楼Before的平面图

▲阁楼After的平面图
设计改造后亮点:
①阁楼原本是毛坯,最矮处只有10cm,原本楼梯位置开在最高处实在是浪费,干脆只保留一个口做了消防滑杆,把上下楼梯开在相对低矮侧边,不影响通行而且预留高出更好来布局阁楼房间。
②阁楼虽然层高高低不同,干脆利用房屋情况设计了两个充满梦幻色彩的书屋儿童房+三分离设计卫生间,低矮处做收纳柜,高处摆放床,一切刚刚好。
二楼空间...Second Floor...
推门而入,左手边是定制到顶的玄关柜,
中间开放格选了女业主钟爱的墨绿色,
柜子中间腰带选了浅咖色,从玄关一直贯穿到餐厅旁吧台,
再到叠级楼梯,宛如金丝带。
天花顶面线性灯一直延伸到对面柜门上,
错开光的设计减少沉闷感,预示着这是一个有趣好玩的家。

原本封闭的厨房被直接打开,
改作开放式中西厨+餐厅的空间,
呈现出别墅应有的开阔感。
餐桌左右两侧的天花板
嵌入特别定制的中央空调出风口和进风口,
风口自带射灯,夜晚灯光开启,新增了些不同的情趣。
岛台正上方的天花板上安装了有着有趣灵魂的"青空灯",
抬眼即见云朵和微风,下厨心情变得美好。

餐厅简约而不简单,悬浮实木餐桌和黑色岩板岛台结合,
将愉快用餐情绪全部纳入其中。

原本平淡无奇的餐厅墙,
隐喻的祥云图案灵感来源是女业主英文名JOJO,
不动声色的表达了女业主含蓄内敛的性格。


厨房采用U型设计,拆不掉的承重梁柱,
被与橱柜同色的木纹板包裹,无形中化解了尴尬的存在感。

厨房墙面贴了不锈钢,
不惧油污容易清洁,大单槽设计,
可以洗碗也能容纳得下锅具更实用。

墙面通体全白的色调落落大方,连卫生间门也同样涂刷白色涂料,
转角的线性灯恰好落在墙壁阳角处,起到收口和照明双重作用。

原始楼梯入口原本在卫生间这,
在重新规划时,把吧台与叠级楼梯连接,
一开灯带宛如在大学里的图书馆阶梯,
爱看书的女业主喜欢在这闲坐看书。

巧借楼梯下方空间在二楼增设了马桶间,不用爬上爬下如厕,
超迷你三角形台盆贴墙而装,洗手就在一瞬间。
三楼空间...Third Floor...
整个客厅以白色+黑色内饰为主,将阳台收入在内,
大面积落地开窗设计,使得整个空间更为明亮通透。

大块面积灰色沙发沉稳大气,与沙发顶上的黑色镜面,
黑色百叶帘,一起奠定了空间的沉稳基调。
一整排白色书柜门特意设计成巴士移门,
不仅省空间而且开关门方便。

沙发背后的整面墙书柜,配上滑梯真是让人艳羡,
爱看书女业主、希望在家营造小图书馆既视感。

客厅仰赖于大大的落地窗,
一扇窗让室内和室外有了联系,
室内,窗几明净,室外,风景怡然。
暖呼呼的秋日阳光穿透进来,
慵懒在这里喝茶,看书,惬意感无需多言。


慵懒又肆意的阳光最是抚慰人心,就爱这向阳而生的生命力。
室内外光影结合,给的极简空间带来温暖,
光透过百叶帘如波浪纹一样,在木地板上荡漾开来。

电视柜一侧增加水吧台,可喝水,洗水果,
底部则贴心规划了两个嵌入式小冰箱。
水吧台的墙面选了透明玻璃,
与二层楼梯吊灯相望,形成有趣的互动。

原本的小卧室打掉墙体,
改为多功能房,与客厅相连后,
整个公区形成南北通透格局。
这里既是茶室亦是卧房or书房,
嵌入式推拉门可开可合,隔热不断。

榻榻米设计成选用木色饰面,
造型如小木屋,一侧柜体还嵌入了电视,
这里可以作为学习工作区、茶室,也是给偶尔来住的长辈卧房。

窗外绿植美如画,
在这里一面喝茶,一面赏景,
这里马上化身为最自由舒适的所在地。
坐在室内小木屋的榻榻米床上,
透过无遮挡大面积的玻璃窗,绿植唾手可得,
随时拥有在度假的户外休闲惬意,感知四季变化的美。

偶尔男主人还会在这里办公,不用担心打扰家人休息。

主卧大面积选用木色,
与窗外绿植美景,形成温暖闲适的度假感。

床头柜和床头一体化设计,简洁利落又温润。


木色和白色交错的梳妆台+衣柜,
能给人极为舒适、无负担的视觉感受。


干湿分区的的主卫,
特意选用大面积白色瓷砖自带不规则小色块,时尚感拉满!

移步到三楼的休闲楼梯间,
公卫选用了木色的幽灵门,时尚又省空间。

为减少空间笨重感,楼梯选用悬浮钢板,
涂刷明媚而张扬的克莱因蓝,
三楼阁楼儿童房与楼下空间形成一个明显的分层设计。

巧借空间,在这里安排了女主人弹奏的钢琴,
儿子喜爱的架子鼓,楼梯下的木色台阶是观众最佳“座位”。

注意到天花板上,这个有趣的千层镜了吗?
其实是一个平面灯,营造千层感,
起到往上提高空间开阔的效果。
平时开灯是普通白色自然光,想要营造party氛围,
可把光调成五颜六色,十分酷炫。

钢琴区设计了小木屋造型,
开放格形似烟囱,用来收纳琴谱和书籍再好不过。

酷酷的架子鼓与黑色气质很搭,
四条线性灯的加持,有了深邃时光交错感。

楼梯对面的蓝色洞洞板,
轻拉白色门把手,竟然是家政柜,
里面整齐收纳家里清洁工具,
白色门把手可随意穿插,挂物品也适用。

纵横交叉的扶手,张力十足,
又起到安全防范作用。
阁楼空间...Attic Space...
5岁的女儿正是充满公主梦的年纪,
经特别定制的成品梦幻树屋小床是她的指定床,在家就能实现滑滑梯的自由。

女儿房层高足有3米多高,
顶面安排了童趣十足的彩色气球灯,梦幻公主房就此诞生了。

儿子房的层高相对女儿房矮,但是也不压抑,
除了选温和不刺眼的软膜灯,还特意选用了交错的线条灯,
酷炫和科技感更符合男孩气质。

雾霾蓝色定制柜与灰白相间的木屋床,
一起打造如蓝天白云般轻盈的空间。

木屋造型的窗前恰到好处定制了一个书桌,
写作业累了,可随时抬眼看到远处佘山美景,
对保护孩童视力真是绝佳利器。

台盆背面是不规则斜面空间,
干脆全部做镜子,起到提升空间开阔感。

淋浴区选用黄色砖,活泼跳跃的色彩丰富了空间。
玻璃砖的加持带来光影,无窗淋浴间也亮堂。
楼梯...Stairs...
透明玻璃扶手与透明玻璃吊灯,增加了楼梯的通透感和质感,
吊灯顶部的石膏板定制的祥云图案与餐厅墙面的祥云形成互相呼应。

在叠墅里安装一个消防滑杆真的建议一户一个,因为真的太太太好玩了!!!
提前预留滑杆洞口,不锈钢做框架,
小空间有局限,我们干脆舍弃传统栏杆,直接铺木地板。
同时软膜灯和天际灯散发出温润柔和的光源交汇在此,
尽可能减少对孩子眼睛的伤害。



想要从阁楼去到二层餐厅吃饭,
只需揭开木地板,套上防护绳,抓住滑杆5秒速达。
结语 Conclusion...
本案叠墅原本每个空间相对封闭,
在设计规划时,我们做了空间大调整,
拥有独栋别墅既视感,使得动线和家居氛围感更强。
在新家,
大人和小孩都能妥善的被安放,
重构的空间带来全新舒适的生活方式,
给予居住者一种更安定的力量。
同场加映
上海476㎡毛坯,爆改成轻奢别墅,一家三口娱乐居住都包了
日本博主夫妇3年存200万,全靠这10个省钱绝招,900W人都来抄作业
#头条创作挑战赛# #室内设计##冬日生活 打卡季##头条群星10月榜##家居设计#
